Anasayfa
Firma
Projeler
Ödüller
Referanslar
İletişim
English
Eğitim
Ofis
Oteller
Tatil Köyleri
Planlama
Konut
Restorasyon
Ticari
Ulaşım
Kültürel
Spor
Sağlık
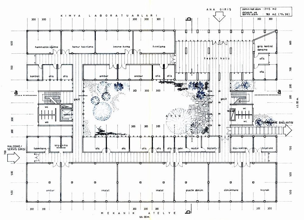
ASELSAN Araştırma Laboratuvarları, Ankara,
1979-80